villa
ヴィラ
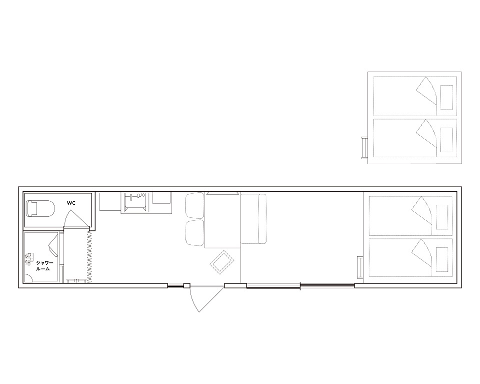
デラックスバンクヴィラ
最大6名様にてご利用可能な
デラックスバンクヴィラ。
ご家族やグループ旅行にも最適です。
| 通常客室 | ||
| 客数 | 2室 | |
| お部屋の広さ | 24㎡ | |
| ベッド | 2段ベッド2台 ※6名様でご利用の場合、 2台エキストラベッドでの対応 (マットレス仕様) | |
| 喫煙/禁煙 | 禁煙 | |
| 客室設備・備品 | シャワールーム(バスタブなし)・温水洗浄便座・エアコン・テレビ・冷蔵庫(冷凍機能付)・金庫・湯沸かしケトル・ヘアドライヤー・ハンガー・グラス・マグカップ・常備灯・電子レンジ・美容機器(加湿・空機清浄機能付)・鏡 | |
| アメニティ | バスタオル・フェイスタオル・バスマット・シャンプー・コンディショナー・ボディソープ・フェイス&ハンドソープ ※下記アメニティはフロントにございます。 リラックスウェア・歯ブラシ・ボディタオル・カミソリ・コットンセット・ヘアゴム・ヘアブラシ・綿棒・化粧水・乳液・クレンジング・フェイスウォッシュ |
|
| インターネット | 無料wi-fi | |